The Daily Beacon
business /

Does California require real estate withholding?

Real estate withholding is required on the sale of CA real property held by a trust unless the trust can qualify for an exemption on Form 593.

California has been withholding the prepayment of taxes for real estate transactions involving non-residents for many years. As of January 1, 2003, the withholding laws were amended to also apply to the dispositions of California real estate by both residents and non- residents.

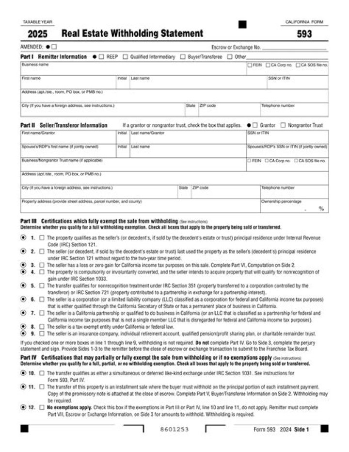
What is real estate withholding Statement?

A. Purpose. Use Form 593, Real Estate Withholding Statement to: Certify the seller/transferor qualifies for a full, partial, or no withholding exemption. Estimate the amount of the seller’s/transferor’s loss or zero gain for withholding purposes and to calculate an alternative withholding calculation amount.

Who is required to withhold tax on the California real estate sale?

Withholding is required on sales or transfers of California real property when the total sale price exceeds $100,000 and does not qualify for an exemption on FTB Form 593-C (see Part III Exemptions).

Does California tax real estate sales?

California residents must pay taxes on gains or profits they make from the sale of property.

Who fills out Form 593?

Any person who withheld on the sale or transfer of California real property during the calendar month must file Form 593 to report, and Form 593-V to remit the amount withheld. Normally, this will be the title company, escrow company, intermediary, or accommodator.

What is the withholding rate for real estate in California?

In addition, non-California partnerships are subject to withholding requirements on a sale of California real property at a rate of 3 1/3% (.0333) of sales price or 12.3% of gain. The alternative withholding rates for the sale of California real property by S corporations is 13.8% and 15.8% for Financial S corporations.

How does withholding work in the state of California?

State of California Real Estate Withholding – The State regulations regarding withholdings on real property sales is a little different from the Federal withholding under the FIRPTA guidelines. The amount is withheld from the Seller right in the escrow transaction and sent to the Franchise Tax Board at closing.

Who is responsible for withholding on the sale of California real property?

Any remitter (individual, business entity, trust, estate, or REEP) who withheld on the sale/transfer of California real property must file Form 593 to report the amount withheld. If this is an installment sale payment after escrow closed, the buyer/transferee is the responsible person. See instructions for Part V, Buyer/Transferee information.

When to file California real estate withholding statement?

) were revised and were effective as of November 2019. As of January 1, 2020, California real estate withholding changed. We now have one Form 593, Real Estate Withholding Statement , which is filed with FTB after every real estate transaction. .